Tradition trifft Kinderlachen
Denkmalschutz - Sanierung
Das Wiegehaus auf dem Bildungscampus in Kirschgartshausen wird aktuell umfassend saniert: Das Dach und der Dachstuhl werden gemäß den Vorgaben des Denkmalschutzes sorgfältig instandgesetzt, um die historische Substanz zu erhalten.
Gleichzeitig bereitet das Gebäude seine neue Nutzung vor: Im Erdgeschoss werden künftig Kinder betreut. So entsteht ein Ort, der Tradition und Gegenwart miteinander verbindet – historische Architektur trifft auf lebendiges Lernen und Spielen, und das Wiegehaus bleibt ein prägender Teil des Campus für die nächste Generation.
Leistungen:
Ausführungsplanung bis Ausführung
Einfamilienhaus
Erweiterung & Aufstockung
In Birkenau wurde ein bestehendes Einfamilienhaus durch eine gezielte Aufstockung erweitert, um den Bedürfnissen einer jungen Familie gerecht zu werden. Ziel war es, zusätzlichen Wohnraum zu schaffen und gleichzeitig eine klare, moderne Raumstruktur zu entwickeln.
Durch die Neuordnung des Grundrisses entstand eine optimale Nutzung der vorhandenen Fläche. Helle, funktionale Räume und klare Wegeführungen sorgen heute für mehr Wohnqualität und Flexibilität im Alltag.
Leistungen:
Entwurf bis Ausführung
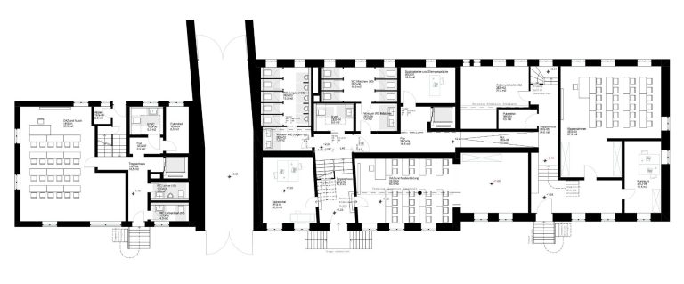
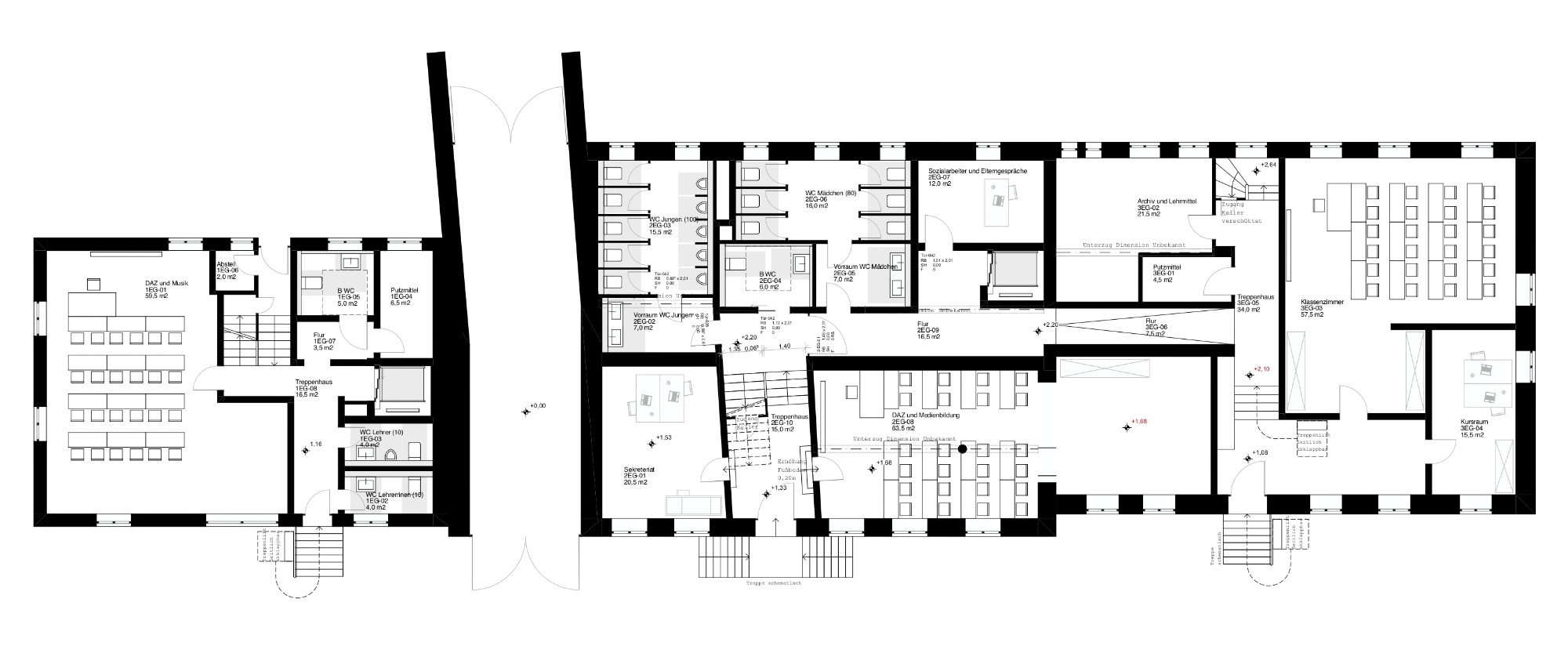
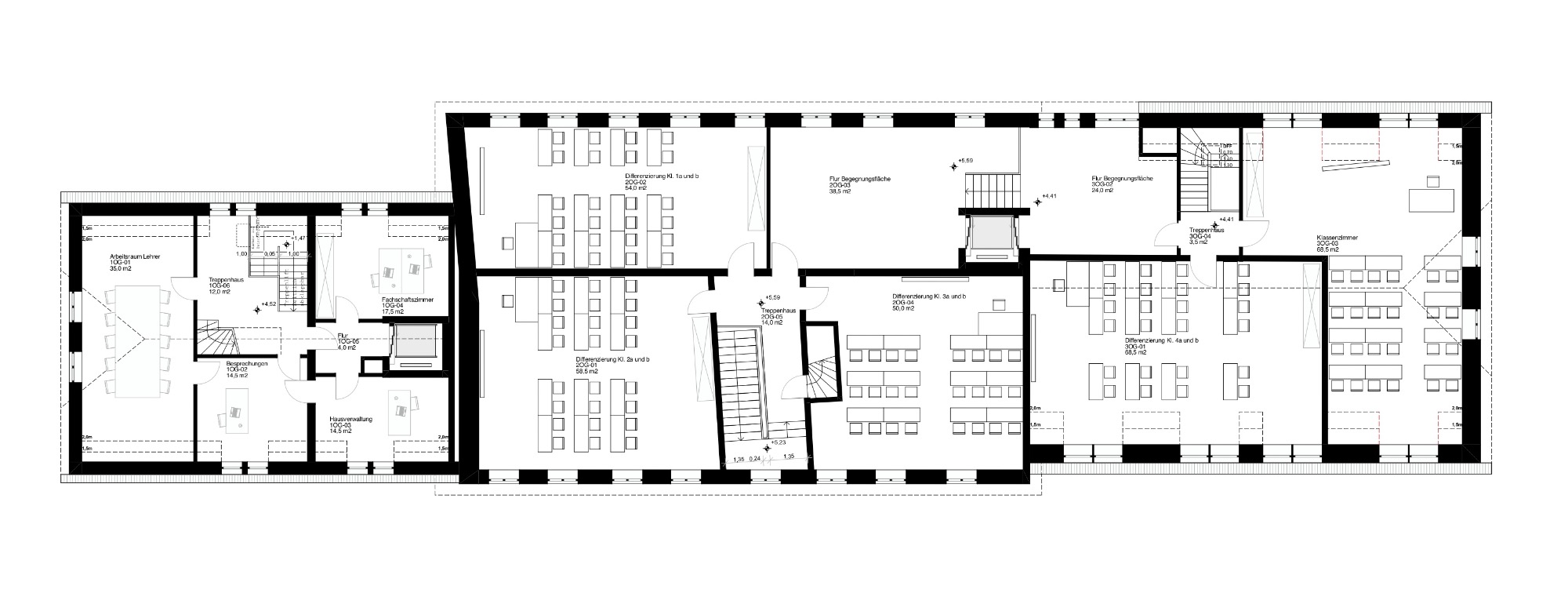
Grundschule im
Herrenhaus
Sanierung & Umbau
Mit seinen alten Mauern erzählt das Herrenhaus auf dem Bildungscampus in Kirschgartshausen Geschichten aus vergangenen Jahrhunderten. Jetzt bekommt es eine neue Aufgabe: Eine Grundschule mit acht hellen Klassenzimmern, in der Kinder neugierig entdecken, lernen und wachsen können.
Beim Umbau wird jede Entscheidung sorgfältig abgewogen: Moderne technische Standards, pädagogische Anforderungen und Barrierefreiheit schaffen eine Umgebung, in der Lernen Freude macht. Gleichzeitig wird die historische Substanz behutsam bewahrt – Fassaden, Holzdetails und Raumstrukturen erinnern an die Vergangenheit und lassen sie lebendig im Schulalltag weiterleben.
So entsteht ein Ort, der Bildung und Kultur verbindet: Ein Haus, das seine Geschichte ehrt, während es gleichzeitig die Zukunft der Kinder gestaltet. Hier wird Lernen zu einem Erlebnis, das Respekt für Tradition und Offenheit für Neues in Einklang bringt.
Leistungen:
Entwurf bis Ausführung
Kontakt
Knoll Architekten
Martin Knoll
Am Binsenberg 21
69488 Birkenau
Telefon: +49 (0) 162 1915922
E-Mail: m.knoll@knoll-architekten.de














